
$529,900
Est. Payment: $3,069/mo
Adjust down payment, rate & terms
19724-B School
Cornelius, NC 28031
3
bedrooms
3
baths
1,954
sq.ft.
$271
price per sf

Presented By
Carnarri Cofield
REALTOR®
About This Property
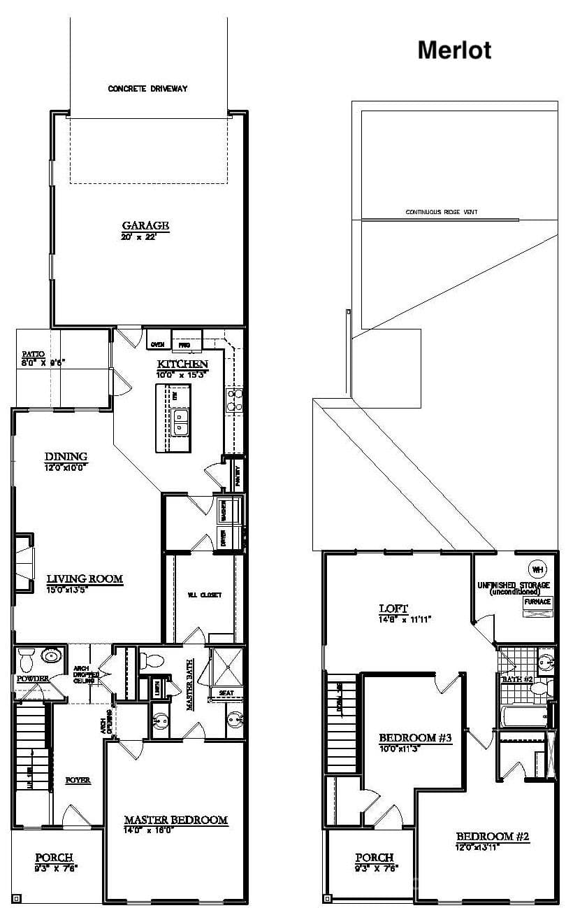
LAST ONE - HURRY! MOVE-IN READY - END UNIT in charming School Street at Catawba, just a short walk to downtown Cornelius, the Cain Center for the Arts, and tons of local dining. The Merlot plan lives like a townhome with the convenience of condo ownership. Enjoy a first-floor primary suite with walk-in closet and tiled bench shower, plus a walk-thru to the laundry and kitchen. This open layout features 9' ceilings on both levels, quartz countertops, wall oven/microwave, tile backsplash, and oak tread stairs. Upstairs, two bedrooms share a full bath and a spacious loft, perfect for a home office or second living room. Enjoy morning coffee on your covered front porch or the second-floor porch! A fenced patio courtyard with gate offers privacy, while the 2-car rear-load garage with 20' driveway adds convenience. Community is under construction—no sales office on site. End-unit, first-floor living this close to Cornelius doesn’t come often, book your private showing today! CONTACT US FOR CURRENT PROMOTIONS & FINANCING PROGRAMS
Property Features
Property Description
- Beds Total: 3
- Full Baths: 3
- Half Baths: 1
- Year Built: 2025
- Living Area: 1,954 sqft
- New Construction: Yes
- MLS #: 4235027
Additional Home Features
- Subdivision: None
Association
- Association Fee: $345
- Association Fee Frequency: Monthly
- Association Name: CAMS
- Association Phone: 704-731-5560
- HOA Required: Yes
Utilities
- Cable Available
- Natural Gas
- Wired Internet Available
Interior Features
- Breakfast Bar
- Cable Prewire
- Entrance Foyer
- Kitchen Island
- Open Floorplan
- Pantry
- Walk-In Closet(s)
- Heating: Forced Air, Natural Gas, Zoned
- Cooling: Central Air, Zoned
- Electric Dryer Hookup
- Laundry Room
- Main Level
Appliances
- Dishwasher
- Disposal
- Exhaust Hood
- Gas Cooktop
- Gas Water Heater
- Microwave
- Plumbed For Ice Maker
- Wall Oven
Construction Materials
- Fiber Cement
- Foundation: Slab
- Roof: Architectural Shingle
Cooling
- Central Air
- Zoned
Foundation Details
- Slab
Heating
- Forced Air
- Natural Gas
- Zoned
Laundry Features
- Electric Dryer Hookup
- Laundry Room
- Main Level
Levels
- Two
Parking Features
- Attached Garage
- Garage Faces Rear
- Garage Spaces: 2
Exterior Features
- Lawn Maintenance
- Patio/Porch: Balcony, Front Porch, Patio
Pets Allowed
- Conditional
Road
- Road Responsibility: Private Maintained Road
- Road Surface Type: Concrete, Paved
Sewer
- Public Sewer
WaterSource
- City
Architectural Style
- Charleston
Security Features
- Carbon Monoxide Detector(s)
Flooring
- Carpet
- Tile
- Vinyl
- Wood
Window Features
- Insulated Window(s)
Fireplace
- Fireplace: Yes
- Gas Log
- Living Room
Tax and Financial Info
- Listing Terms: Cash, Conventional, Exchange, FHA, USDA Loan, VA Loan
Location
Schools
Elementary
Cornelius
Middle
Bailey
High School
William Amos Hough
LISTING COURTESY OF: BETTER HOMES AND GARDENS REAL ESTATE PARACLE
bjordan@paraclerealty.com
$529,900
Est. Payment: $3,069/mo
Adjust down payment, rate & terms
19724-B School
Cornelius, NC 28031
3
bedrooms
3
baths
1,954
sq.ft.
$271
price per sf

Presented By
Carnarri Cofield
REALTOR®
Listings courtesy of Canopy MLS as distributed by MLS GRID
No guarantee, warranty or representation of any kind is made regarding the completeness or accuracy of descriptions or measurements (including square footage measurements and property condition), such should be independently verified, and Citadel Cofield, its subsidiaries, affiliates and their agents and associated third parties expressly disclaims any liability in connection therewith. Photos may be virtually staged or digitally enhanced and may not reflect actual property conditions. Offers of compensation are subject to change at the discretion of the seller. No financial or legal advice provided. Equal Housing Opportunity.
Listing Courtesy of Better Homes and Gardens Real Estate Paracle
Properties displayed may be listed or sold by various participants in the MLS. Based on information submitted to the MLS GRID. All data is obtained from various sources and may not have been verified by broker or MLS GRID. Supplied Open House Information is subject to change without notice. All information should be independently reviewed and verified for accuracy. Properties may or may not be listed by the office/agent presenting the information.

$529,900
19724-B School
3 bed, 3 bath

