
$1,495,000
Est. Payment: $7,684/mo
Adjust down payment, rate & terms
400 Church
Charlotte, NC 28202
3
bedrooms
3
baths
2,972
sq.ft.
$503
price per sf

Presented By
Carnarri Cofield
REALTOR®
About This Property
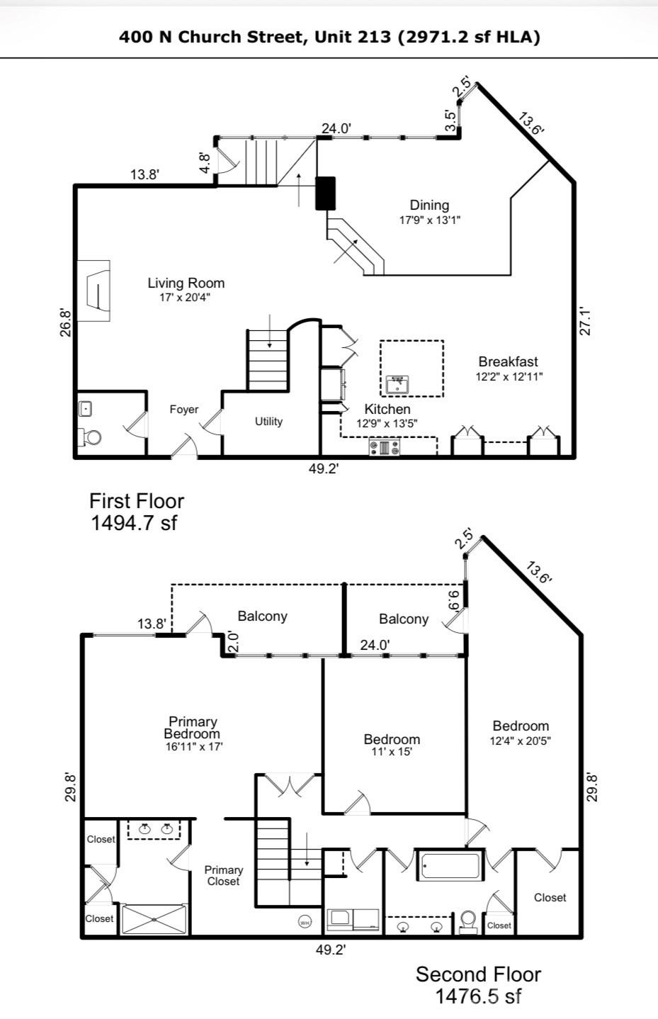
Rare opportunity to own one of the largest and most unique residences at 400 N Church Street in the heart of Uptown Charlotte. This beautifully reimagined 3-bedroom, 2.5-bath mid-rise condo offers a seamless blend of urban convenience and quiet, courtyard-facing serenity. A truly special feature of this home is its dual access—enter via the secured parking deck and elevator, or enjoy the charm of a semi-private courtyard entrance that feels worlds away from the city. Step directly into your own front door from this peaceful setting, where the noise of Uptown fades and privacy takes center stage. Inside, the home has been thoughtfully redesigned with a sophisticated, Restoration Hardware-inspired aesthetic. The open-concept living space is anchored by a stunning gas fireplace and flows effortlessly into a fully updated kitchen featuring a large, marble island ideal for entertaining, beverage bar, and top-of-the-line appliances. The spacious layout offers exceptional flexibility, including a dedicated work-from-home option. One of the bedrooms has been transformed into an impressive walk-in closet with a custom California Closet system—truly a standout feature—while the other two expansive bedrooms include walk-in custom closets as well. Positioned facing the interior courtyard, this unit offers a level of quiet rarely found in Uptown living—no road noise, just calm and comfort. Additional highlights include one deeded parking space, an additional prepaid parking space through the year, and a deeded 5x8 storage unit. The HOA covers water, sewer, trash, exterior maintenance, and access to a fitness facility, making for easy, low-maintenance living in an unbeatable location. This is city living redefined—private, polished, and perfectly positioned.
About the Neighborhood
Homes for sale in 28202 place buyers at the literal center of Charlotte's urban core, encompassing Uptown Charlotte's First Ward, Second Ward, Third Ward, and Fourth Ward neighborhoods in one of the most architecturally diverse zip codes in the Carolinas. The residential landscape spans the full spectrum — from meticulously restored late Victorian and early Colonial Revival townhomes in Fourth Ward Historic District to sleek glass-and-steel luxury high-rises and mid-rise condos lining Tryon Street and College Street. Residents enjoy immediate walkability to Romare Bearden Park, the Spectrum Center, and the nascent South Tryon Street dining corridor, with Bank of America Corporate Center and Wells Fargo's East Coast headquarters among the major employers within steps of front doors. The LYNX Blue Line, CATS bus rapid transit, and the planned Gold Line streetcar extension all originate or pass through 28202, making car-free urban living entirely viable. For buyers seeking true lock-and-leave urban living with zero compromise on proximity to Charlotte's cultural, culinary, and employment core, the 28202 real estate market offers a compelling and continually appreciating investment.
Property Features
Property Description
- Beds Total: 3
- Full Baths: 3
- Half Baths: 1
- Year Built: 1997
- Living Area: 2,972 sqft
- New Construction: No
- MLS #: 4372058
Additional Home Features
- Subdivision: 400 North Church
- Neighborhood: 400 North Church
Association
- Association Fee: $650
- Association Fee Frequency: Monthly
- Association Name: First Service
- Association Phone: 704-527-2314
- HOA Required: Yes
Interior Features
- Elevator
- Open Floorplan
- Walk-In Closet(s)
- Heating: Heat Pump
- Cooling: Ceiling Fan(s), Central Air
- Utility Room
- Upper Level
Appliances
- Bar Fridge
- Dishwasher
- Gas Range
Construction Materials
- Brick Partial
- Block
- Foundation: Basement
Cooling
- Ceiling Fan(s)
- Central Air
Foundation Details
- Basement
Heating
- Heat Pump
Laundry Features
- Utility Room
- Upper Level
Levels
- Two
Parking Features
- Assigned
- Parking Deck
- Parking Space(s)
- Garage Spaces: 2
Exterior Features
- Storage
- Patio/Porch: Balcony, Covered
Road
- Road Responsibility: Publicly Maintained Road
- Road Surface Type: Concrete
Sewer
- Public Sewer
WaterSource
- City
Community Features
- Elevator
- Fitness Center
Architectural Style
- Contemporary
View
- City
Flooring
- Hardwood
Fireplace
- Fireplace: Yes
- Gas
- Living Room
Tax and Financial Info
- Listing Terms: Cash, Conventional, VA Loan
Location
LISTING COURTESY OF: AVIATOR REALTY
Jessie@buywithaviator.com
$1,495,000
Est. Payment: $7,684/mo
Adjust down payment, rate & terms
400 Church
Charlotte, NC 28202
3
bedrooms
3
baths
2,972
sq.ft.
$503
price per sf

Presented By
Carnarri Cofield
REALTOR®
Listings courtesy of Canopy MLS as distributed by MLS GRID
No guarantee, warranty or representation of any kind is made regarding the completeness or accuracy of descriptions or measurements (including square footage measurements and property condition), such should be independently verified, and Citadel Cofield, its subsidiaries, affiliates and their agents and associated third parties expressly disclaims any liability in connection therewith. Photos may be virtually staged or digitally enhanced and may not reflect actual property conditions. Offers of compensation are subject to change at the discretion of the seller. No financial or legal advice provided. Equal Housing Opportunity.
Listing Courtesy of Aviator Realty
Properties displayed may be listed or sold by various participants in the MLS. Based on information submitted to the MLS GRID. All data is obtained from various sources and may not have been verified by broker or MLS GRID. Supplied Open House Information is subject to change without notice. All information should be independently reviewed and verified for accuracy. Properties may or may not be listed by the office/agent presenting the information.

$1,495,000
400 Church
3 bed, 3 bath
